Меню Поиск Разместить Избранное Кабинет

Продается 1-комн. квартира 28 м²

Объявление 102350, обнов. 19.02.26
4
4 100 000 ₽ 146 429 ₽/м²
Следить за ценой

Подписка на изменение цены

Мы сообщим вам, если цена объекта изменится
или на почту
Нажимая кнопку «Подписаться» вы соглашаетесь с политикой конфиденциальности
возможен торг — предложить свою цену
Купить в ипотеку:
Тип жилья
Год постройки
2009
Общая площадь
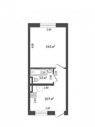
28 м²
Площадь кухни
11 м²
Этаж / всего
1 / 2
Тип дома
Кирпичный
Санузел
Совмещенный
Окна выходят
Во двор
Ремонт/отделка
Сделан косметический ремонт

Арт. 128397136
При звонке, просьба указать номер объекта128397136.
Продаётся уютная, тёплая, светлая 1-комнатная квартира, площадью 28м.кв. на ул.Красных Зорь в г.Ростове-на-Дону.
В квартире выполнен качественный ремонт из современных материалов. Площадь жилой комнаты составляет 14м.кв., кухни - 11м.кв., санузел совмещён. В квартире индивидуальное отопление от газового котла, что обеспечивает минимальные коммунальные платежи и возможность пользоваться отоплением в любой период времени.
Квартира расположена на 1 этаже 2-х этажного дома 2009 года. Закрытая территория двора. Близость ко всей развлекательно- культурной инфраструктуре города.
Объект без обременений, подходят различные формы оплаты.
Почему вам стоит приобрести недвижимость с нами?<ul><li data-list="bullet"><span class="ql-ui" contenteditable="false"></span>экспертный анализ объекта и полное юридическое сопровождение - гарантия вашей безопасности и выгодной сделки.</li><li data-list="bullet"><span class="ql-ui" contenteditable="false"></span>прозрачное ценообразование, оплата по результату.</li><li data-list="bullet"><span class="ql-ui" contenteditable="false"></span>нашим клиентам в подарок сертификат на покупку мебели на 50.000 рублей в магазине Hoff.</li></ul>
С уважением, компания Дон-МТ недвижимость , агент Наталья 220.

Дон-МТ Номер объявления SD61-102350.

Дон-МТ-недвижимость
По вопросам покупки обращаться:
Позвонить
Скажите агентству, что нашли это объявление на КРАСДОМЕ
Написать

Похожие объявления

Не можете найти нужный вариант?

Оставьте заявку на подбор объекта и мы отправим ее трем проверенным нами агентствам недвижимости. Они возьмут все вопросы поиска на себя.
Нажимая кнопку «Отправить заявку» вы соглашаетесь с политикой конфиденциальности.