Меню Поиск Разместить Избранное Кабинет

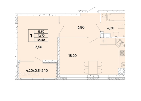
Продается 1-комн. квартира 43 м²

Объявление 105692, обнов. 11.04.26
3
7 300 000 ₽ 169 767 ₽/м²
Следить за ценой

Подписка на изменение цены

Мы сообщим вам, если цена объекта изменится
Нажимая кнопку «Подписаться» вы соглашаетесь с политикой конфиденциальности
Купить в ипотеку:
Общая площадь
43 м²
Площадь кухни
17 м²
Этаж / всего
5 / 12
Тип дома
Монолитный
Санузел
Совмещенный
Окна выходят
Во двор
Ремонт/отделка
Евроремонт

Арт. 107342650
Продается 1-но комнатная квартира в ЖК "61 квартал":<ul><li data-list="bullet"><span class="ql-ui" contenteditable="false"></span>в квартире выполнен качественный ремонт,</li><li data-list="bullet"><span class="ql-ui" contenteditable="false"></span>закрытая, охраняемая территория,</li><li data-list="bullet"><span class="ql-ui" contenteditable="false"></span>подземный паркинг,</li><li data-list="bullet"><span class="ql-ui" contenteditable="false"></span>новый район со своей школой, детским садом, множеством магазинов и большой обустроенной территорией;</li><li data-list="bullet"><span class="ql-ui" contenteditable="false"></span>остановка общественного транспорта в двух минутах ходьбы от дома;</li><li data-list="bullet"><span class="ql-ui" contenteditable="false"></span>шикарный вид из окна на территорию комплекса;</li><li data-list="bullet"><span class="ql-ui" contenteditable="false"></span>подходят любые виды расчетов.</li></ul>

Гарантируем чистоту сделки и полное юридическое сопровождение - с нами работать легко и безопасно, убедитесь сами!
Звоните - подробнее по телефону!

С уважением, компания Дон-МТ, агент Екатерина 955.

Дон-МТ Номер объявления SD61-105692.

Дон-МТ-недвижимость
По вопросам покупки обращаться:
Позвонить
Скажите агентству, что нашли это объявление на КРАСДОМЕ
Написать

Похожие объявления

Не можете найти нужный вариант?

Оставьте заявку на подбор объекта и мы отправим ее трем проверенным нами агентствам недвижимости. Они возьмут все вопросы поиска на себя.
Нажимая кнопку «Отправить заявку» вы соглашаетесь с политикой конфиденциальности.