Меню Поиск Разместить Избранное Кабинет

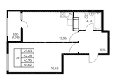
Продается 1-комн. квартира 45.62 м²

Объявление 82374, обнов. 09.04.26
56
6 614 900 ₽ 145 000 ₽/м²
Следить за ценой

Подписка на изменение цены

Мы сообщим вам, если цена объекта изменится
Нажимая кнопку «Подписаться» вы соглашаетесь с политикой конфиденциальности
Купить в ипотеку:
Новостройка
Срок сдачи
3 кв 2027 — по проекту
Состояние
Возведение нижних этажей
Застройщик
Доннефтестрой
Общая площадь
45.62 м²
Этаж / всего
10-14, 16-19 / 25
Тип дома
Монолит-кирпич
Тип и серия дома
Новой планировки
Ремонт/отделка
Отделка WhiteBox

Успейте купить квартиру в проекте бизнес-класса «Звезда Столицы 2» выгодно!

Акции, которые действуют сейчас:
•⁠ Скидки до 2 000 000 ₽/месяц (учтено в цене)
•⁠ Ипотека от 5% на весь срок без удорожания!

Вы можете выбрать один из вариантов отделки:
✔Черновая;
✔Предчистовая (white-box);
✔Ремонт под ключ (2 стилевых решения).

Новый жилой комплекс бизнес-класса в центре Ростова‑на‑Дону. Звёздная локация от надежного застройщика.Выбирая место для открытий, отдыха или развития, вы можете быть уверены в комфорте поездки: быстрые маршруты на личном авто или такси, большой выбор направлений железнодорожного общественного транспорта.

Покупая квартиру в ЖК «Звезда Столицы 2», Вы приобретаете:
• Приватная территория
• Многоуровневый внутренний двор с озеленением
• Детские и спортивные площадки
• Гранд-терраса - между первой и второй секцией на крыше
• Подземный паркинг
• Образовательные и коммерческие сервисы на территории ЖК
• Кофейни и рестораны
• Спортивная студия
• Мини-кинотеатр
• Колясочные
• Сервис-менеджер
• Коворкинг центр
• Специальное место для хранения заказов;

Круглосуточное видеонаблюдение охватывает общественные пространства и весь периметр двора. Вход на территорию осуществляется через приложение «Умный дом»

При покупке НАПРЯМУЮ ОТ ЗАСТРОЙЩИКА – получите индивидуальную скидку!
Звоните сейчас!

ДОННЕФТЕСТРОЙ Номер объявления SD61-82374.

ТИТУЛ
По вопросам покупки обращаться:
Позвонить
Скажите агентству, что нашли это объявление на КРАСДОМЕ
Написать

Похожие объявления

Не можете найти нужный вариант?

Оставьте заявку на подбор объекта и мы отправим ее трем проверенным нами агентствам недвижимости. Они возьмут все вопросы поиска на себя.
Нажимая кнопку «Отправить заявку» вы соглашаетесь с политикой конфиденциальности.