Меню Поиск Разместить Избранное Кабинет

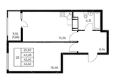
Продается 1-комн. квартира 45.62 м²

Объявление 82528, обнов. 16.02.26
40
6 177 860 ₽
История изменения цены
11.07.2025
6 405 960 ₽
19.01.2026
6 177 860 ₽
-228 100 ₽
135 420 ₽/м²
Следить за ценой

Подписка на изменение цены

Мы сообщим вам, если цена объекта изменится
или на почту
Нажимая кнопку «Подписаться» вы соглашаетесь с политикой конфиденциальности
Купить в ипотеку:
Новостройка
Срок сдачи
3 кв 2027 — по проекту
Состояние
Возведение нижних этажей
Застройщик
Доннефтестрой
Общая площадь
45.62 м²
Этаж / всего
4-19 / 25
Тип дома
Монолит-кирпич
Тип и серия дома
Новой планировки
Ремонт/отделка
Отделка WhiteBox

Успейте купить квартиру в проекте бизнес-класса «Звезда Столицы 2» выгодно! Акции, которые действуют сейчас:•⁠ Скидки до 2 000 000 ₽/месяц (учтено в цене)•⁠ Рассрочка 0% - ежемесячный платеж 50 000 ₽/месяц•⁠ Ипотека от 5% на весь срок без удорожания!•⁠ Квартиры от 18 400 ₽/месяцВ ЛЮБОЙ ДЕНЬ АКЦИЯ МОЖЕТ БЫТЬ ОТМЕНЕНА!Вы можете выбрать один из вариантов отделки:✔Черновая;✔Предчистовая (white-box);✔Ремонт под ключ (2 стилевых решения).Новый жилой комплекс бизнес-класса в центре Ростова‑на‑Дону. Звёздная локация от надежного застройщика.Выбирая место для открытий, отдыха или развития, вы можете быть уверены в комфорте поездки: быстрые маршруты на личном авто или такси, большой выбор направлений железнодорожного общественного транспорта.Покупая квартиру в ЖК «Звезда Столицы 2», Вы приобретаете:• Приватная территория • Многоуровневый внутренний двор с озеленением • Детские и спортивные площадки • Гранд-терраса - между первой и второй секцией на крыше• Подземный паркинг• Образовательные и коммерческие сервисы на территории ЖК• Кофейни и рестораны • Спортивная студия • Мини-кинотеатр• Колясочные • Сервис-менеджер• Коворкинг центр • Специальное место для хранения заказов;Круглосуточное видеонаблюдение охватывает общественные пространства и весь периметр двора. Вход на территорию осуществляется через приложение «Умный дом»При покупке НАПРЯМУЮ ОТ ЗАСТРОЙЩИКА – получите индивидуальную скидку!Звоните сейчас!

ДОННЕФТЕСТРОЙ Номер объявления SD61-82528.

ТИТУЛ
По вопросам покупки обращаться:
Позвонить
Скажите агентству, что нашли это объявление на КРАСДОМЕ
Написать

Похожие объявления

Не можете найти нужный вариант?

Оставьте заявку на подбор объекта и мы отправим ее трем проверенным нами агентствам недвижимости. Они возьмут все вопросы поиска на себя.
Нажимая кнопку «Отправить заявку» вы соглашаетесь с политикой конфиденциальности.